
「愛着あるわが家を大切に残したい」
「安全・安心・快適に暮らしたい」
「住まいの価値を高めたい」
建物の経年状況、ライフステージの変化、
今のライフスタイルにあわせた最適なリフォームをトヨタホームがご提案します。

水まわりリフォーム
・キッチン
・洗面室
・トイレ
一般的に、水まわりリフォームの時期は築15年前後といわれています。キズや汚れ、部品の消耗が目立ちはじめたらリフォームのサイン。機能性、デザイン性に優れた最新機器への交換とあわせ、水まわり空間のリニューアルもご提案します。

内装リフォーム
・空間のイメージチェンジ
・間取りの変更
・全改修(フルリフォーム)
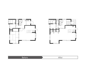
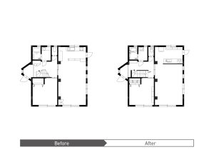
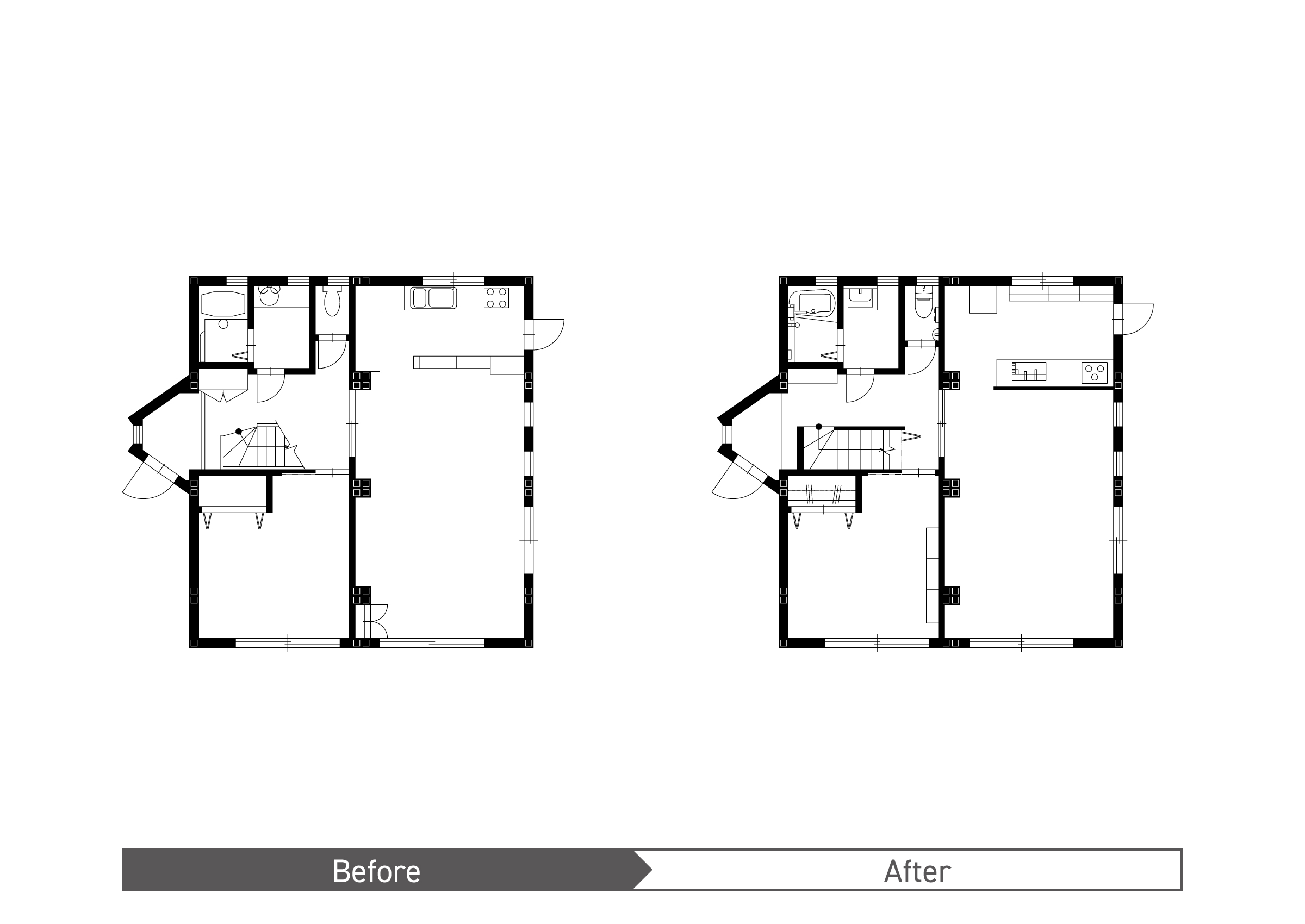
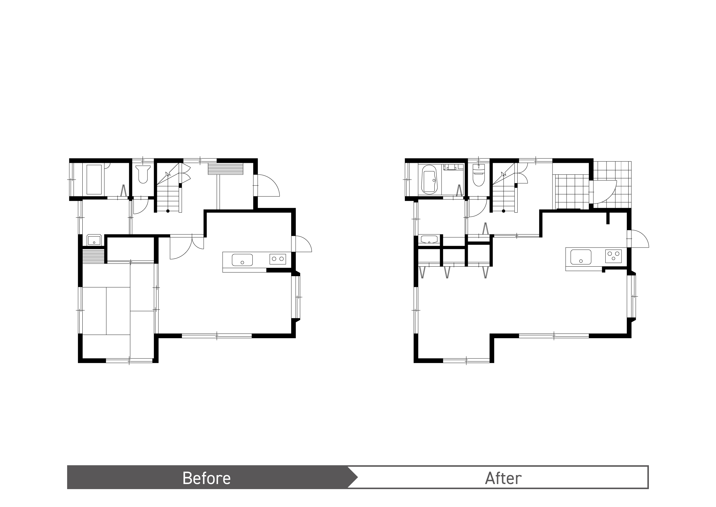
新築時には気にならなかった間取りも、家族構成やライフスタイルの変化によって動きづらさや使いにくさを感じることも。今の暮らしにあった間取り、機能的かつ最新のトレンドを取り入れた内装材で、新たな快適空間に生まれ変わります。

外装リフォーム
・屋根・外壁塗装
・バルコニー防水
・エクステリア
太陽や風雨にさらされる屋根・外壁、バルコニーは、築年数の経過とともに劣化し、美観を損なうだけでなく、雨漏りや構造体の損傷を引き起こしかねません。外装は、適切な時期に適切なメンテナンスをすることが大切です。

断熱リフォーム
・内窓・サッシ
・床・天井
・玄関ドア
部屋間の温度差、夜と朝の温度差は体に負担を与えます。高い断熱性能を有することで、省エネ効果だけでなく、健康で快適な生活にもつながります。家まるごとから、主な生活空間だけなど、暮らし方に合った断熱リフォームを実現します。

スマートリフォーム
・太陽光・蓄電器
・エコキュート
・PHV充電・V2Hスタンド
2019年以降、太陽光発電の固定買取価格制度(FIT)は順次終了します。今後は発電した電気を全て家庭で使う暮らしにシフト。太陽光発電システムで電気をつくり、蓄電池に電気をため、賢く使う。災害時、停電時の安心にもつながります。

その他のリフォーム
・耐震
・二世帯
・増改築
木造住宅の耐震リフォーム。マンションの1室まるごとリフォーム。そして、強いトヨタホームの構造体を生かしたスケルトンリフォームなど、トヨタホームはあらゆる住まいの様々なリフォームニーズにお応えします。

戸建からマンションまであらゆる住まいのリフォームに対応します
長い年月が経つと、子供が独立したり、新しい家族が増えたりと、家族構成やライフスタイルが変化していきます。
トヨタホーム東京では、お客様のご要望を基に、ライフスタイルに合わせた最適なリフォームをご提案します。














































